MODELLJERNBANEFORENINGEN I NORGE (MJF) - forum

  New Posts New Posts RSS Feed - Sagbruk i N skala
  FAQ FAQ  Forum Search   Events   Register Register  Login Login

Sagbruk i N skala

 Post Reply Post Reply
Author
øystein lb View Drop Down
Veteran
Veteran
Avatar

Joined: 02 august 2009
Location: Norway
Status: Offline
Points: 378
Post Options Post Options   Thanks (0) Thanks(0)   Quote øystein lb Quote  Post ReplyReply Direct Link To This Post Topic: Sagbruk i N skala
    Posted: 07 november 2010 at 16:57
Jeg hiver med på Sagbruksbølgen jeg og, med et i N skala!

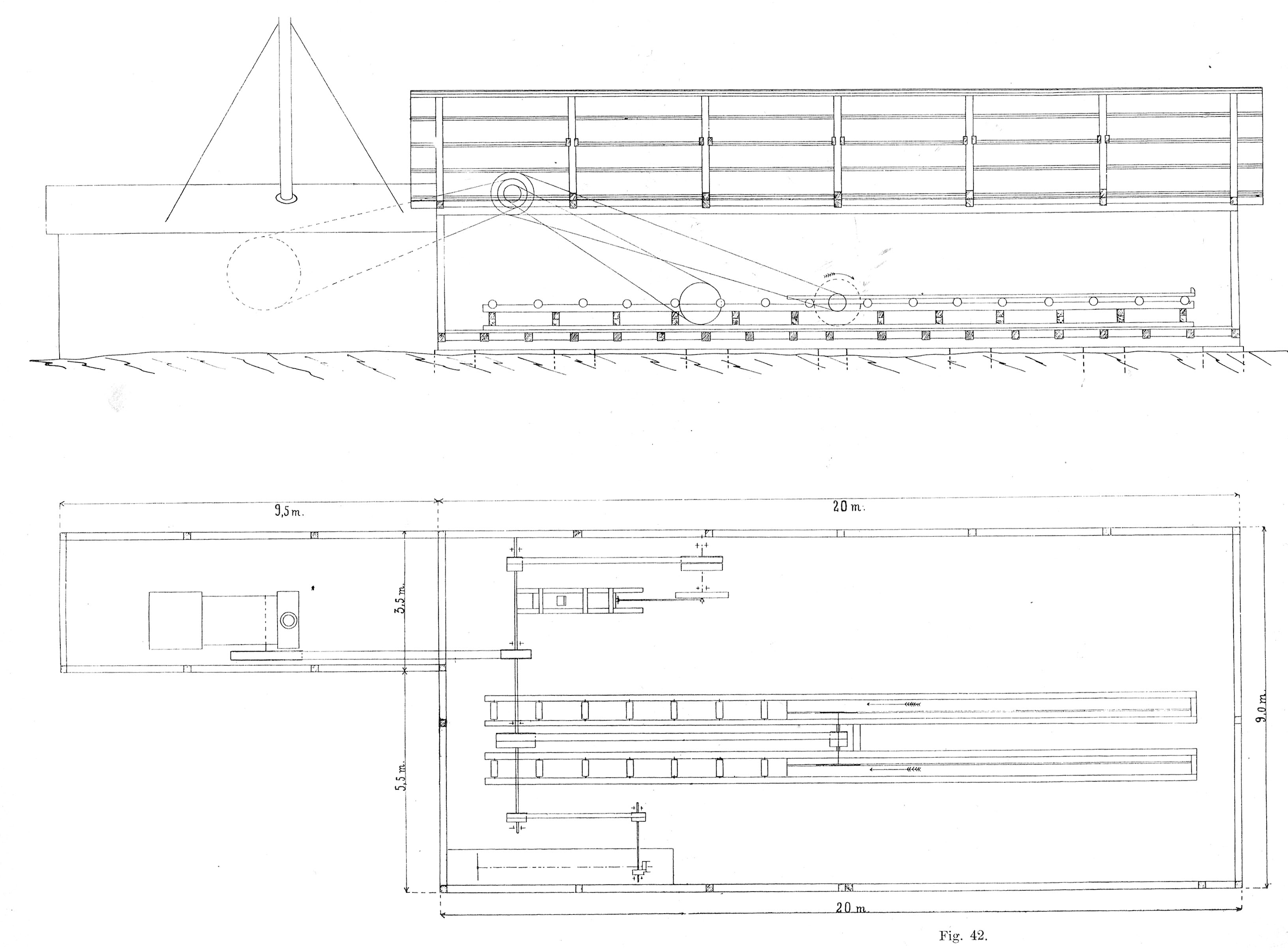
Tegningen la Håvard Houen ut på Norsk MJ Forum:


Bilder fra dagens økt:

Uploaded with ImageShack.us

Arbeidsbordet og den obligatoriske kaffe koppen( dette bilde ble tatt Kl 11.15 ca)

Uploaded with ImageShack.us

Dagens arbeid

Uploaded with ImageShack.us

Nærbilde




Edited by øystein lb - 07 november 2010 at 17:38
Blogg: http://nesttunrailway.wordpress.com/

Epost: oysteinlb(krøllalfa)gmail.com

Tron
Back to Top
Håvard H View Drop Down
Medlem i MJF
Medlem i MJF
Avatar

Joined: 02 november 2004
Location: Norway
Status: Offline
Points: 2016
Post Options Post Options   Thanks (0) Thanks(0)   Quote Håvard H Quote  Post ReplyReply Direct Link To This Post Posted: 08 november 2010 at 09:34
Originally posted by øystein lb øystein lb wrote:


Jeg hiver med på Sagbruksbølgen jeg og, med et i N skala!


En bra start, Øystein.
Hold oss oppdatert!
Back to Top
øystein lb View Drop Down
Veteran
Veteran
Avatar

Joined: 02 august 2009
Location: Norway
Status: Offline
Points: 378
Post Options Post Options   Thanks (0) Thanks(0)   Quote øystein lb Quote  Post ReplyReply Direct Link To This Post Posted: 08 november 2010 at 15:32
De blir nok ikke før trosdag.... Jeg er overlesset i arbeid! 
Lekser, jule konsert på skolen, albuomslag til Skolens punk band; Progressiv kaos og LAN på Skolen+++++++
Blogg: http://nesttunrailway.wordpress.com/

Epost: oysteinlb(krøllalfa)gmail.com

Tron
Back to Top
ses View Drop Down
Fremo og MjF medlem
Fremo og MjF medlem
Avatar

Joined: 09 november 2006
Location: Norway
Status: Offline
Points: 3922
Post Options Post Options   Thanks (0) Thanks(0)   Quote ses Quote  Post ReplyReply Direct Link To This Post Posted: 08 november 2010 at 15:43
Originally posted by øystein lb øystein lb wrote:

De blir nok ikke før trosdag.... Jeg er overlesset i arbeid! 
Lekser, jule konsert på skolen, albuomslag til Skolens punk band; Progressiv kaos og LAN på Skolen+++++++

... men ikke TMJK? Cry

Svein S
Back to Top
øystein lb View Drop Down
Veteran
Veteran
Avatar

Joined: 02 august 2009
Location: Norway
Status: Offline
Points: 378
Post Options Post Options   Thanks (0) Thanks(0)   Quote øystein lb Quote  Post ReplyReply Direct Link To This Post Posted: 08 november 2010 at 16:00
Tid er avsatt den uka, neste skal jeg på konsert! Trur jeg da...
Blogg: http://nesttunrailway.wordpress.com/

Epost: oysteinlb(krøllalfa)gmail.com

Tron
Back to Top
øystein lb View Drop Down
Veteran
Veteran
Avatar

Joined: 02 august 2009
Location: Norway
Status: Offline
Points: 378
Post Options Post Options   Thanks (0) Thanks(0)   Quote øystein lb Quote  Post ReplyReply Direct Link To This Post Posted: 02 januar 2011 at 15:17
Nei, jeg tullet ikke når jeg sa jeg var overlesset i arbeid, fordi jeg har ikke bygget MJ siden den første posten var postet, så har jeg ikke jobbet med dette! 

Men i romjulen forandret jeg trenden, og fikk gjort noe! Utrolig.....

Jeg har bygget begge reisverkene for langsidene, og ene endeveggen.
Jeg hadde også noen frustrasjoner med dette prosjektet:

  1. Hvitlim på lister som er 0,9x0,9 mm fungerer ikke....
  2. Det må hvere noen måte og fikserer tegnigen sånn at limet ikke fester seg til tegnigen.

1: 
Du farger listen først, så limer du dette sammen med super lim! Enkelt og greit.

2: 
Jeg grublet og grublet, forde jeg hadde lest om noe sånt, så slo det meg! Gni talg mot tegnigen!
Det sto i boka; Teknoloigisk forlags store bok om modellbygging.
Det fungerer!

Et problem er at jeg har verksted i kjelleren, og det har vert kaldt her i trønderlandets hovedstad, så jeg klarer ikke og jobbe lenger en 1,5 timer i strekk,på de meste! Hendene mine blir helt stiv..... På det verste så pustet jeg frostrøyk mens jeg jobbet! Så en kopp varm kaffe ved arbeidsbordet er altids fint!

En liten bilderull med bilder som jeg har tatt under byggingen(med min iphone):


Nonstopp'er som klemme. Også kalt tegnestifter!


Enkel måte og kutte ting i lik lengde. En bit hvit kartong og 2 lister som er limt 90 grader mot hverandre. Finn lengden, og kutt en slisse i den lengste listen. 
Bruk et enegget blad, og du er i lykke!


Arbeidsbordet. Jeg fester tegnigen til en porøs eller asfalt plate, og har en liten glass plate til og kappe og male, beise ting på. Det er greit og male på den forde det er veldig enkelt og fjerne rester. Litt blåvask eller en skrape.

Det går da framover, sakte desverre!


Edited by øystein lb - 02 januar 2011 at 18:18
Blogg: http://nesttunrailway.wordpress.com/

Epost: oysteinlb(krøllalfa)gmail.com

Tron
Back to Top
 Post Reply Post Reply

Forum Jump Forum Permissions View Drop Down

Forum Software by Web Wiz Forums® version 12.05
Copyright ©2001-2022 Web Wiz Ltd.

This page was generated in 0,031 seconds.